57 Haus in Weesen Realisiert

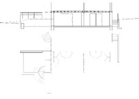
Das Haus in Weesen soll künftig als Künstler*innen-Residenz angeboten und in vielfältiger Weise genutzt werden. Unser Intervention an der Ostfassade des Bestandes verbindet sowohl die grosszügige Gemeinschaftsküche im Erdgeschoss wie auch den kühlen Sous-Terrain-Bereich, über ein eine leichte Brücke und ein neues Atrium, mit dem herrschaftlichen Garten.

Direktauftrag

Stefan Wülser + Geraldine Burger + Jan Helmchen

 
(schliessen)
stefanwuelser_atrium_weesen-4854
stefanwuelser_atrium_weesen-4777
stefanwuelser_atrium_weesen-4807
stefanwuelser_atrium_weesen-4848
stefanwuelser_atrium_weesen-4817
stefanwuelser_atrium_weesen-4841
stefanwuelser_atrium_weesen-4609
stefanwuelser_atrium_weesen-4797
stefanwuelser_atrium_weesen-section