94 Schule in Trogen Wettbewerb, Aktuell

Das seit 1804 stetig gewachsene Ensemble der Kantonsschule Trogen erstreckt sich über 200 Meter entlang der Strasse ins Töbeli. Häuser unterschiedlichster Zeiten und Stile reihen sich nebeneinander. Hier gliedern keine übergeordneten geometrische Bezüge die Bauvolumen, sondern die Topografie. Sie dient als natürliches Ordnungssystem, in dem jedes Haus seine Ausrichtung über die lokale Hangneigung gefunden hat. Einige drehen sich dabei leicht aus den Achsen der Nachbarn und schaffen Zwischenräumeund Durchblicke. Es besteht ein fragiles Gleichgewicht, in dem sich eigentlich eigenständige Bautypen funktional ergänzen. Sie werden durch Ähnlichkeiten im Massstab, in den Abständen und in ihrer Beziehung zur Topografie zusammengehalten. Wir begegnen dem vergrösserten Platzbedarf der Kantonsschule mit zwei explizit eigenständigen Eingriffen. Die geforderten 2'300 m2 Nutzfläche werden aufgeteilt und spannen eine Klammer um das Schulgelände. Das Ensemble wird nach aussen subtil vergrössert, ohne seine Kompaktheit und Erlebnisdichte zu verlieren. Es entstehen keine Häuser «in zweiter Reihe»sondern bewusste Verzahnungen mit der Landschaft.

In den acht Gebäuden der Kantonsschule Trogen sind die verschiedenen Unterrichts- und Funktionsräume des heutigen Schulsystems untergebracht. Während die Häuser architektonisch klare Identitäten aufweisen, werden sie betrieblich als Gesamtorganismus wahrgenommen, bei dem der Strasse eine integrale und integrative Bedeutung zukommt. Alles ist verteilt aber in der Nähe. So liest sich das im Wettbewerb beschriebene Raumprogramm der nächsten Bauetappe nicht wie ein eigenständiger Neubau, sondern wie eine Palette von Ergänzungen und Erweiterungen des Bestehenden. Die Schule soll vielfältiger und flexibeler werden, damit auch die nächsten Revisionen des Schulsystems gute räumliche Bedingungen vorfinden. Durch die Aufteilung der neuen Räumlichkeiten auf zwei verwandte, aber andersartige Baukörper wird die Einheit des konglomeraten Ortes weiter gestärkt. Wie die Häuser selbst, gehen auch die neuen Raumangebote Beziehungen zu ihren jeweiligen Nachbarsbauten ein. Es werden Netze von Angeboten etabliert und Synergien und Mehrfachnutzungen gefördert.

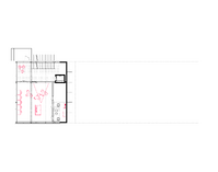
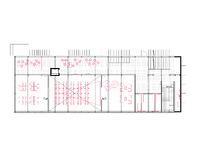
Der südwestliche Baukörper legt sich präzise in die bestehende Topografie und bildet einen ortsbaulichen Rücken an der Grenze zur darüber liegenden Wohnzone. Seine Hauptrichtung findet er in der Verlängerung des Kantiwegs und der Gefällssituation. Er entwickelt eine markante Schnittfigur aus Raumschichten, die entlang der Hangkante zwischen dem Roten Schulhaus und der Aufschüttung am Südhang verlaufen. Das Haus verbindet die Ebenen bis zum darunter liegenden neuen Pharosplatz und ist durch die doppelte Erschliessung mit äusserem Laubengang und innerer Halle flexibel programmierbar. Der nordöstliche Baukörper stellt sich quer zum Geländeverlauf. Das schmale Volumen entwickelt sich entlang einer doppelten Kaskadentreppe, die sowohl innen als auch aussen verläuft. So können alle Ebenen sowohl über den Eingang auf Strassenniveau als auch über individuelle Eingänge pro Geschoss erreicht werden. Die weite Erschliessungszone wird an mehreren Stellen mit Nutzungen überlagert und ergänzt. Durch die präzise Abstufung im Schnitt muss das Gelände nur geringfügig angepasst werden und das Haus nur an wenigen Punkten fundiert werden. Sowohl auf den Plätzen auf dem Dach wie auch in den quer orientierten Innenräumen wird die landschaftliche Weite erlebbar.

Wettbewerbsbeitrag

Architektur: Stefan Wülser + Maria Gisler + Moritz Wahl
Bauingenieur: Co_Struct

 
(schliessen)
karte4
karte3
karte2
karte1
stefanuelser_kantitrogen_umg
stefanuelser_kantitrogen_site
stefanuelser_kantitrogen_h1-aa-50
stefanuelser_kantitrogen_h1-04d
stefanuelser_kantitrogen_h1-03
stefanuelser_kantitrogen_h1-02
stefanuelser_kantitrogen_h1-01
stefanuelser_kantitrogen_h1-00
stefanuelser_kantitrogen_h1-aa
stefanuelser_kantitrogen_h1-bb
stefanuelser_kantitrogen_h1-fas
stefanuelser_kantitrogen_h1-fas2
stefanuelser_kantitrogen_h2-cc-50
stefanuelser_kantitrogen_h2-04-kopie-2
stefanuelser_kantitrogen_h2-03-kopie
stefanuelser_kantitrogen_h2-02-kopie
stefanuelser_kantitrogen_h2-01-kopie
stefanuelser_kantitrogen_h2-00-kopie
stefanuelser_kantitrogen_h2-04-kopie
stefanuelser_kantitrogen_h2-cc